地址:湖北省襄阳市江山南路6号
    Tel:13508660044
    E-mail:xfzhelec@163.com
第一章 高压软启动柜产品概述

1、高压软启动柜产品简介

高压软启动柜是高压交流电动机的起动设备,它是接于电源与被控电机间的三相反并联晶闸管组件及其电子控制装置。高压固态软启动柜是由多个晶闸管串并联而成,通过控制晶闸管的触发角来控制输出电压的大小,可以满足电机起动过程中不同电压和电流要求。在电机起动过程中,高压固态软启动柜按照预先设定的起动曲线,增加电机的端电压,使电机平滑加速,从而减少电机起动对电网、电机和相连设备的电气和机械冲击。当电机起动达到正常转速后,旁路真空接触器接通,电机起动完成。电机运行过程中,高压软启动柜继续监控电机,实时测量电机电流、电压,并提供各种故障保护。

2、高压软启动柜性能指标

类别

说明

交流电压

AC3kV/6kV/10kV,±10%-15%;

负载类型

三相高压交流异步电机、同步电机

频率

50Hz/60Hz ± 2Hz

主回路组成

3kV,12SCRS;6kV,18SCRS;10kV,30SCRS;

瞬时过压保护

均压保护器和阻容吸收网络

冷却方式

自然冷却

控制方式

三线制(常开点)、两线制(常闭点)、遥控(RS485)

90

环境条件

环境温度:-20-50℃,海拔:不超过1500米,相对湿度:不超过85%


3、高压软启动柜工作原理
 
图1.1 高压软启动柜柜原理框图

高压软启动柜工作原理就是接受到起动命令时,由微处理器检测到同步信号后,对主回路可控硅相位角触发进行控制,逐渐增加电机端的电流和电压,从而平滑起动电机。在此过程中,RC阻容吸收单元吸收可控硅反向关断时的尖峰电压;均压电阻擎制可控硅电压,保证串联回路中每只可控硅电压相等。光纤触发保证了控制器与高压可控硅之间的电气隔离,同时保证了触发信号不受电磁干扰。

4、高压软启动柜控制系统

湖北正涵电气有限公司的高压固态软启动柜控制系统由微控制器、脉冲放大、取能触发三部分组成。

1) 微控制器部分

微控制器由CPU控制板、光纤触发板、电源板、采样板和显示屏组成,板上装有MCU微处理器,可以实现光电隔离的开入开出控制、电压电流信号采集、通讯接口、同步信号检测与控制,显示屏通讯与控制、保护功能。

显示屏选用触摸屏,内置菜单,可进行参数设置及显示。

2) 脉冲放大部分

脉冲放大部分是将24V直流电源调制成脉冲电流,调制信号由微控制器控制,通过光纤传输,实现了微控制器和脉冲放大部分的电气隔离。

3) 取能触发部分

脉冲电流通过脉冲变压器时,二次侧可感应出电流,将感应电流调制成脉冲触发信号用于可控硅触发,最终实现了整组可控硅触发。脉冲放大部分和取能触发部分电磁感应连接,实现了电气隔离。


图1.2  控制系统框图

5、高压软启动柜结构设计

高压固态软启动柜设计为柜式结构。柜体框架为50角钢焊接而成,坚固牢靠。柜体设计为柜底进出线方式,在投入运行前,只需要将高压固态高压软启动柜串联接入高压开关柜和高压电动机之间即可。具体电气一次方案图见图1.3。
图1.3 高压固态高压软启动柜一次方案图

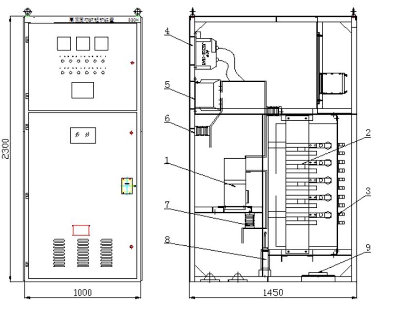
高压固态软启动柜一次器件包括:真空交流接触器、串联晶闸管模块、过电压保护器、高压电流互感器、高压电压互感器、软启动控制器、电源模块等。高压软启动柜内部结构简单,各部分模块化,维护检修简单方便。器件在柜内的布置图见图1.4。

湖北正涵电气有限公司生产的高压固态软启动柜结构设计紧凑合理,维护方便。柜体尺寸可以根据用户要求做适当调整。

 
图1.4  固态高压软启动柜内部布置图

1、真空接触器 2、晶闸管模块 3、取能模块 4、电压互感器 5、电流互感器

6、传感器  7、绝缘子  8、过电压保护器  9、电源模块

 

第二章 高压软启动柜功能介绍

 

1、高压软启动柜保护功能

1)过压保护,欠压保护:电压超出设定电压范围时,保护动作并发出信号。

2)过流保护:起动或运行过程中电流过大,超过设定电流值,保护动作并发出信号。

3)电流不平衡:三相电流不平衡会导致电机抖动和发热,三相电流不平衡值超过设定范围时,保护动作并发信号。

4)起动超时:电机起动时间超过设定时限时,保护动作并发信号。

5)过载保护:电机运行过程中,发生过载时,保护动作并发信号。

6)欠载保护:电机运行过程中,发生欠载或失载,保护动作并发信号。

2、高压软启动柜测量功能

1)电压测量:电网线电压测量

2)电流测量:电机A、B、C三相电流检测。

3、高压软启动柜通讯接口

1)显示通讯:显示板选用触摸屏,RS232通讯方式。

2)外部通讯:外部设备与控制器通讯,RS485通讯方式,标准MODBUS协议。

4、高压软启动柜开入与开出

1)开入量8点,光电隔离,无源开入。

2)开出量7点,触点容量10A/250VAC,无源开出。,

5、高压软启动柜操作界面

1)触摸屏显示,触摸操作。


2)转换开关与操作按钮:直起/, 软起,本柜/远程2个转换开关,起动、停止、直接起动、急停4个按钮。

3)状态指示灯:电源、备妥、起动/软停、旁路/运行、故障、旁路分6个指示灯。

注:以上为标准配置,特殊情况可按用户需求调整。

附录1、订货须知

1) 有选型手册,列出所选软启动装置型号

2) 提供电机参数,如额定电压、额定功率、额定电流等及负载类型,我公司为客户提供选型。

3) 用户提供柜体颜色要求,没要求默认柜体颜色为RAL7032。

附录2、常用电机的软启动装置参数设置表



 

注:电机软启动时,并非起动电流越小软启动效果越好,而是在可接受的电流下电机起动平稳,机械冲击小,发热小,这种情况称之为起动效果良好。电机软启动从起动到旁路时间在15秒至35秒之间,过短或过长的起动时间都是软启动效果不好的表现。

以上设置仅供参考,设置完成后起动,观察效果,再调整起始电压、起动时间和最大限制电流倍数,以达到最优起动效果。

★湖北正涵电气有限公司咨询电话:13508660044