概述:
XGN15—24箱型开关柜适用于24kV交流三相50Hz的单、双母线系统中,作为接收和分配电能之用。该开关柜为户内装置,系不靠墙安装。特别适用频繁操作的场合。
适用范围:本说明适用于XGN15—24箱型固定式金属封闭开关设备的小电流规格。本产品符合GB3906—91《3—35kV交流金属封闭开关设备》。
产品使用环境条件:
·环境温度:上限+40℃; 下限—10℃;
·海拔高度不超过1000m;
·相对湿度:日平均值不大于95%,月平均值不大于90%;
·地震裂度不超过8度;没有火灾、爆炸危险、严重污秽、化学腐蚀及剧烈震动的场所;
·凝露和污秽条件适用如下情况,通常不出现凝露(每年不超过两次)、但有严重污秽,或者凝露不频繁(每月不超过两次)、但只有轻度污秽。(即符合GB3906—91附录E规定中严酷等级的1级条件使用)
产品系列及主要规格:
1、 型号组成
2、 系列和主要规格
主接线方案及规格
技术参数:
|
项目
|
单位
|
数据
|
|
额定电压
|
kV
|
24
|
|
额定电流
|
A
|
630、1000、1250、1600
|
|
额定开断电流
|
kA
|
20、25、31.5
|
|
额定热稳定电流
|
Ka
|
20、25、31.5
|
|
额定动稳定电流
|
kA
|
50、63、80
|
|
额定关合电流
|
kA
|
50、63、80
|
|
热稳定时间
|
S
|
4
|
|
防护等级
|
IP20
|
|
母线系统
|
单、双母线
|
|
操作方式
|
弹簧储能式
|
|
外形尺寸
|
mm
|
1400×2400×3000
|
产品外形及结构:
1、产品外形(以装真空断路器为例,见图1、图2)。
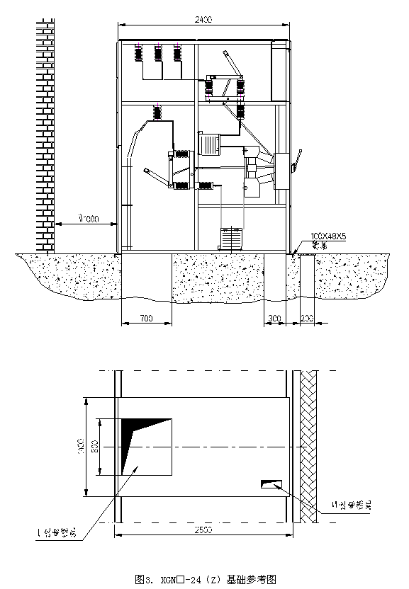
2、开关柜的安装尺寸见图3。
3、结构慨述
本开关柜为金属封闭箱式结构,柜体骨架由角钢焊接而成,柜内可分为断路器室、母线室、继电器室。室与室之间用钢
板隔开。
断路器室在柜体下部,断路器的传动由拉杆与操动机构连接,断路器下接线端子与电流互感器连接,电流互感器与下隔离开关的接线端子连接,断路器上接线端子与上隔离开关的接线端子相连接,断路器室还设有压力释放通道,若内部电弧发生时,气体可通过排气通道将压力释放。
开关柜为双面维护,前面检修继电器室的二次元件,维护操动机构、机械联锁及传动部分、检修断路器,后面维修主母
线和电缆终端。
后门的下方设有与柜宽方向平行的接地铜母线,其截面为4×40mmz。
机械联锁:为了防止带负荷分合隔离开关;防止误分合断路器;防止误入带电间隔;防止带电合接地开关;防止带接地刀合闸。
安装、调整与维修:
1、安装
真空断路器在分合闸时产生的动负载,向上、向下约为9840N,此数据提供设计基础时估算基础应力。
(1) 基础
开关柜基础参考图3进行设计和施工,基础应平整。
(2) 安装程序及注意事项
·将开关柜按排列顺序放置在基础上,调整好成组开关柜的直线度、垂直度、水平度,然后用M12螺栓或用点焊方法
将开关柜紧固在基础槽钢上;
·用M12x 30螺栓进行柜间连接;.安装主母线时,打开母线室顶盖板进行安装,安装好后紧固顶盖板,连接母线时接触面应平整、无污物,有污物应除净,涂个性凡士林油;.安装一次电缆,电缆头制作完后,将电缆头固定在支架上,电缆与母线接触面应平整,接触面上涂个性凡士林油后即可连接,并紧固之,电缆施工完后应将电缆室与电缆沟封隔;
·连接柜间接地母线,使沿开关柜排列方向连成一体,检查工作接地和保护接地是否有遗漏,接地回路是否连接导通,工作接地电阻应不大于1000p9,保护接地电阻不大于453;
·安装二次回路电缆,电缆由机构左侧底穿入,顺侧壁进入继电器室,分接到相应的端子排上,施工时应注意电缆号,端子号不要漏穿或穿错。
2、验收试验及投入运行前准备工作
(1) 验收试验项目
·根据订货资料查对柜内安装的电气元件型号、规格是否相符;
·检查紧固件是否松动,发现有松动的应予拧紧;
·检查母线连接处,接触是否严密,如有接触不良,应进行调整;
·手动操作隔离开关、断路器、机械联锁程序等3—5次,应灵活无卡滞现象,且应动作准确,程序无误;
·检查断路器、隔离开关的机械特性,是否符合其本身规定的要求;
·检查二次接线是否符合图纸要求,在主回路不通电情况下,对二次回路通电进行动作试验,应符合二次接线图的
要求;
·主回路电阻测量,因本开关柜方案多,各相电阻值尚待确定,暂定测量部位为断路器,断路器不超过其标准规定值,测量方法采用直流压降法,通以100A直流电流,测其电压降;
·二次回路绝缘强度试验,在导体与外壳之间,施加交流50Hz,电压2000V,历时1min,应无击穿放电现象,二次回路中有电子器件部分,试验电压由制造与用户商定;
·主回路工频绝缘电压试验,在相对地和相间,施加交流50Hz,根据开关柜的额定电压,按GB311.1规定值的85%历时1min应无击穿闪络现象。
(2) 投入运行准备工作
·活动部位需注油处,应注润滑油;
·接通控制、信号、照明等电源;
·在隔离、断路器等处于分闸状态时,给主母线送电,即合上进线断路器柜;
·合上有电压互感器的开关柜的隔离,检查电压表是否正确,若正确继续往下进行;
·合上避雷器、站内用变压器的隔离及有关辅助电器使其投入运行;
·依次合上馈线柜断路器,检查电流表是否正确。
3、维护与检修
(1) 开关柜投入运行后,监视和维护工作如下:
观察主母线和电气连接处母线,如发现母线过热变色应进行检修;
观察照明、控制、信号电源是否正常;记录断路器的动作次数。
(2) 检修
开关柜检修,有故障检修和定期检修,故障检修是为防止故障运行和防止事故扩大,在发现故障出现或断定即将出现时,立即对故障部位进行检修,及时排除故障。
定期检修,按运行规定按时进行,检修内容如下:
·清扫各部位尘土,特别是绝缘表面的尘土:
·检修程序锁和机械联锁,动作保持灵活可靠,程序正确;
·按断路器、隔离开关、操动机构等电器的规定进行检修、调试;
·检查电器接触部位,接触情况是否良好,检测接地回路,保持连续导通;.紧固各螺钉、销钉。
包装、动输、存放:
1、包装
(1) 开关柜的包装及标志应按XGN□—24BG规定。
(2) 主母线单独包装。
(3) 包装前所有导电接触面,均应涂中性凡士林油。
(4) 开关柜应随箱供给下列文件
·产品合格证明书;
·装箱单;
·安装使用说明书;
·主回路系统图;
·附件。
2、运输
(1) 开关柜可以用铲车搬卸和运输,也可用吊车搬卸。
(2) 搬运时不许倾斜、倒置和遭受剧烈运动。
3、存放
(1) 开关柜应存放在干燥的地方;
(2) 应防止雨淋,以免产生受潮。
(3) 开关拒开箱后,不得随意拆卸电器元件及零部件。
订货时用户须提供下列资料:
1、主结线方案编号及单线系统图、排列图;
2、二次回路接线原理图、端子排列图,如端子无排列图时按制造厂规定:
3、开关柜内的电器元件的型号、规格、数量;
4、主母线、支母线的材质、规格,否则按制造J—规定供应;
|
项目
|
单位
|
数据
|
|
额定电压
|
kV
|
24
|
|
额定电流
|
A
|
1250
|
|
额定开断电流
|
kA
|
31.5
|
|
额定热稳定电流
|
Ka
|
31.5
|
|
额定动稳定电流
|
kA
|
80
|
|
热稳定时间
|
S
|
4
|
|
额定短路开断次数
|
次
|
50
|
|
额定操作次序
|
O-0.3S-CO-0.3S-CO
|