|
GN19-10系列户内高压隔离开关主要用于GG-1A、XGN2-12型10KV高压开关柜内,在分断真空开关后才能操作此隔离开关,不能带负荷分合,在停机时可形成明显的开点,保护人身和设备的安全。 一、开关概述 GN19-10(GN19-10C)系列户内高压隔离开关适用于交流50Hz,额定工作电压6,10kv;额定工作电流200、630、1250A的电力系统中。作为有电压无负荷情况下的分断,闭合电路的户内开关设备使用。此隔离开关配用 CS6-1 型手力操动机构。 二、型号及含义

GN19-10户内高压隔离开关型号中,形式分为GN19-10平装结构式;GN19-10C为穿墙式(带套管);其中:C1--转动在套管侧 C2--开断在套管侧,C3--两侧均为套管。GN19-10Y平装结构式上加装带电显示装置型式。 一般常见的型号有以下几种: GN19-10A400A GN19-10/630A GN19-10/1000A GN19-10/1250A GN19-10C/400A GN19-10C/630A GN19-10C/1000A GN19-10C/1250A 三、主要技术参数
|
型号 |
额定工作电压(KV) |
最高工作电压(KV) |
额定工作电流(A) |
动稳定电流(峰值)(KA) |
2S热稳定电流(KA) |
|
GN19-10/400-12.5 |
10 |
11.5 |
400 |
31.5 |
12.5 |
|
GN19-10/630-20 |
10 |
11.5 |
630 |
50 |
20 |
|
GN19-10/1000-31.5 |
10 |
11.5 |
1000 |
80 |
31.5 |
|
GN19-10/1250-40 |
10 |
11.5 |
1250 |
100 |
40 |
|
GN19-10C/400-12.5 |
10 |
11.5 |
400 |
31.5 |
12.5 |
|
GN19-10C/630-20 |
10 |
11.5 |
630 |
50 |
20 |
|
GN19-10C/1000-31.5 |
10 |
11.5 |
1000 |
80 |
31.5 |
|
GN19-10C/1250-40 |
10 |
11.5 |
1250 |
100 |
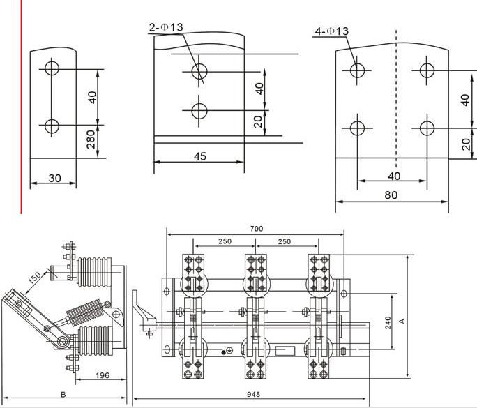
40 | 四、外形及安装尺寸
五、结构和工作原理 GN19-10/400A、GN19-10/630A、GN19-10/1000A、GN19-10/1250A户内高压隔离开关的每相导电部分通过两个支柱绝缘子固定在底座上。(GN19-10C/400A、GN19-10C/630A、GN19-10C/1000A、GN19-10C/1250A型则为一个为支柱绝缘子,一个为瓷套管绝缘子)三相平行安装,导电部分由触刀、静触头、触座(或导电杆)组成。每相触刀中间均连有拉杆绝缘子,拉杆绝缘子与安装在底座上的主轴相连。主轴通过手柄与连杆和CS6-1型手力机构相连在一起连动。 触刀由两片槽形铜板组成,它不仅增大了触刀散热面积,对降低温度有利,而且提高了触刀的机械强度,使开关的动稳定性提高。触刀一端通过螺栓安装在触座上(或导电杆上)。为转动接触触刀,另一端与静触刀系可分连接,而触刀触压力靠两端的弹簧来维持。 户内高压隔离开关在接触处安排有磁锁板,加磁锁板的目的是,当很大的短路电流通过时加强了两槽形触刀之间的吸引力,亦即增加了接触压力,因而提高了开关的动热稳定性。 GN19- 10/400A 、 GN19-10/630 隔离开关极即通过电流小。因此结构无需加磁锁板。 底座装配:由底座、主轴、限位器、止档圈等组成。限位器主要用来保证导电触刀分、合时得到所要求的终点位置,合分到位后给提供给电气回路一个信号。 六、使用环境 1.海拔高度不超过 2000 米; 2.周围环境温度不高于 +40 ℃及不低于 -10℃; 3.无剧烈振动、摆动或冲击的场所; 4.无火灾、爆炸、腐蚀金属破坏绝缘的有害气体及导电场所; 5.相对湿度不大于 90%(+25℃ 七、安装注意 GN19-10型户内高压隔离开关分为上隔离开关和下隔离开关,上隔离开关一般安装在高压开关柜的上部,下端接真空开关,最下端接下隔离开关,根据要求,下隔离开关不是高压开关柜必配。
|